近年來,歐式風格設計在鄉村別墅中牢牢占據主流地位,無論簡歐亦或是古典歐式風格,從建筑線條到羅馬柱,處處都彰顯著別墅主人的地位與身份,可謂氣派十足。目前大多數回鄉建房的人,主要是給家里老人提供一處遠離城市喧囂的恬靜養老之處,如果家族人多,三層建筑就顯得尤為適用。
今天給大家推薦5款適合鄉村養老休閑的三層自建別墅,如果你想進一步了解以下戶型,可在文末聯系方式與我們聯絡,獲取詳細的房屋估價、建裝材料、施工報價等資料。
?

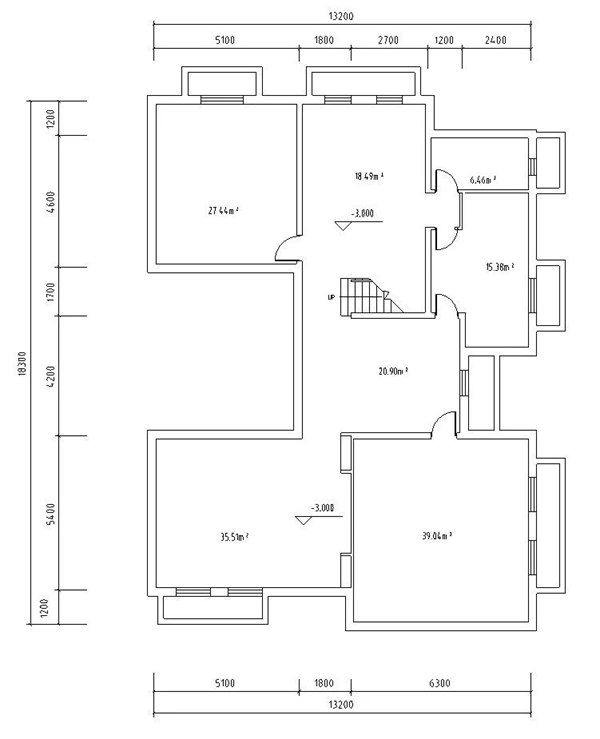
0 1


????
開間:13.2米
進深:18.3米
占地面積:230.6平方米
建筑面積:592.9平方米
樓層:2層+地下室
屋頂形式:坡屋頂
0 2


????
開間:10.5米
進深:12.3米
占地面積:129.15平方米
建筑面積:356平方米
建筑高度:12米
0 3

????
開間:7米
進深:16.2米
占地面積:113.4平方米
建筑面積:302.6平方米
建筑高度:12.67米
0 4


????
開間:9米
進深:15米
占地面積:135平方米
建筑面積:340平方米
建筑層數:3層
建筑高度:11米
0 5


????
面寬:14.1米
進深:11.7米
總建筑面積:311.36平米
占地面積:135.26平米
建筑檐口高度:9.6米
?

