常見的檐溝:K型檐溝和U型檐溝


常見的落水管:方形落水管和圓形落水管


注意
1、圓形落水管可以與K型、U型檐溝連接。
2、方形落水管一般只與K型檐溝連接。
K型檐溝 & 方形落水管的連接
1、在檐溝底邊按槽罐連接器內邊畫出矩形邊線,使用角磨機或剪刀沿矩形邊線裁切成出水口。
2、 把槽管連接器套在出水口上,與檐溝鉚接在一起。
3、把彎頭或雨落水管套在槽管連接器上,用2 個拉鉚釘分左、右鉚接在槽管連接器上。


K型檐溝 & 圓形落水管的連接
1、使用開孔器在檐溝底部開孔,開孔器直徑是80mm 或100mm。
2.、把槽管連接器套在出水口上,與檐溝鉚接在一起。
3、 把彎頭或落水管套在槽管連接器上,用2 個拉鉚釘分左、右鉚接在槽管連接器上。


U型檐溝 &圓形落水管的連接
1、按槽管連接器大口內徑在檐溝底部畫圓;按圖示樣式切割圓內檐溝。
2、將切好的檐溝向外翻起,即成出水口。
3、把槽管連接器套在出水口上,與檐溝鉚接在一起。
4、把彎頭或雨落水管套在槽管連接器上,用2 個拉鉚釘分左、右鉚接在槽管連接器上。


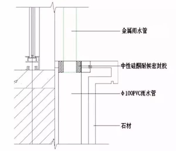
金屬落水管 & PVC管如何對接
方案一:
直接對接。金屬雨水管插入PVC雨水管的長度約為5公分,金屬雨水管與PVC雨水管之間的縫隙用中性硅酮耐候密封膠密封。

方案二:
PVC保護蓋開孔。在PVC雨水管保護蓋上直接開孔,孔徑與金屬雨水管的截面積大小一樣,將金屬雨水管插入PVC雨水管的長度約為5公分,縫隙用中性硅酮耐候密封膠密封。可以有效防止雜物進入,滿足排水管道順暢及美觀。

方案三:
變徑連接。金屬雨水管、變徑連接器、PVC雨水管均采用順插接的方式插接,插接處用鉚釘進行鉚接。


