近年來,三層房經濟實用性強,整體造型也好看,打算在老家建房的朋友可以考慮一下三層房,非常劃算。下面推薦的這套三層別墅,內部功能齊全,各空間布置合理,利用率高,需要建房的朋友可以參考。
歐式農村三層別墅,豪華設計,造價優惠,該建一棟和家人享受生活
今天小編要給大家介紹一款奢華的歐式別墅,層數為三層,利用空間大。
本戶型是三層別墅,歐式風格,大面積的落地窗,再加上臥室多開窗,使整棟別墅通透明亮,采光通風不錯,靠近馬路,出行便利,適合農村自建。
從別墅的整體看,房型錯落有致,低調奢華,是典型的歐風格。

本戶型是三層別墅,歐式風格,大面積的落地窗,再加上臥室多開窗,使整棟別墅通透明亮,采光通風不錯,靠近馬路,出行便利,適合農村自建。
從別墅的整體看,房型錯落有致,低調奢華,是典型的歐風格。
咋一眼看這款別墅是不是有一種歐式宮殿的感覺?別墅采用米白色有一些泛紅的墻面,屋頂用了磚紅色,兩個靚麗的顏色相互碰撞,顯得別墅不似那么莊嚴,要靈動許多。
接下來我們來看看別墅的平面設計圖:

一層平面設計圖:客廳、餐廳、廚房、臥室、棋牌室、儲藏室
客廳與餐廳相通,顯得整個空間寬闊大氣,更是為家庭聚餐和客人往來提供了舒適的就餐環境。儲藏室的設計更好地節省了空間。

二層平面設計圖:起居室、臥室、衛生間、書房、陽臺。
臥室內配衛生間、書房,非常人性化,給居住者帶來舒適的生活起居環境;還設有起居室,可以在這閑聊以免影響他人休息。

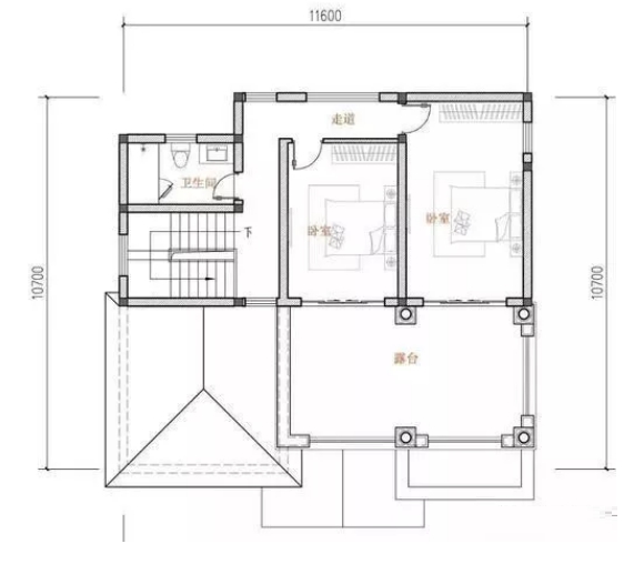
三層平面設計圖:臥室、衛生間、陽臺。
多處開窗、有陽臺,通風良好、光線充足,很適合客人留宿于此。
別墅設計:一套精美的歐式風格,三層樣式占地120平,漂亮至極!

